
10.03.2014 |
Najave / DOGAĐAJI
Izvor: eKapija.ba
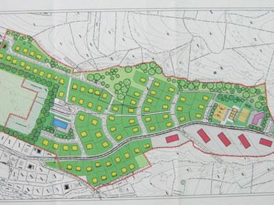
Stručna rasprava o nacrtu Regulacionog plana „Markovac-Rudine“ bit će održana 13. marta 2014. godine (četvrtak) sa početkom u 15,00 časova.
*Pri preuzimanju teksta s portala Akta.ba potrebno je navesti izvor i linkovati tekst.
Dojavi vijest na viber +387 60 331 55 03 ili na mail urednik@akta.ba.